Project No. 003
Artful Living
Client
Emily Jane
Year
2024
Services
Full home design, Color & material consultation
Project Overview
Vel amet adipiscing id nulla sagittis montes in et. Urna aliquam purus sit congue faucibus posuere vulputate facilisis. Venenatis malesuada sed mi est id et augue. Ultrices commodo pharetra suscipit ut eu risus dui facilisis feugiat. Dapibus est eu viverra eget tempus preti.
Vel amet adipiscing id nulla sagittis montes in et. Urna aliquam purus sit congue faucibus posuere vulputate facilisis. Venenatis malesuada sed mi est id et augue. Ultrices commodo pharetra suscipit ut eu risus dui facilisis feugiat. Dapibus est eu viverra eget tempus pretium orc
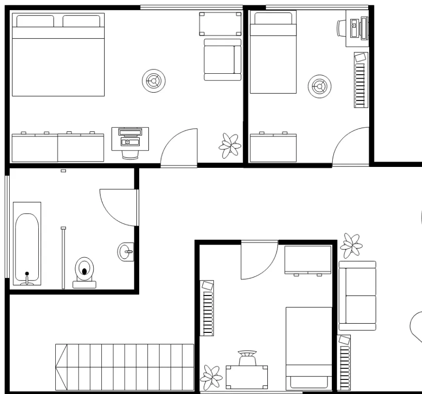
Floor Plans
Level 1
Nunc ullamcorper fermentum nulla ridiculus sed nibh massa. Felis duis duis tincidunt vestibulum ipsum vulputate iaculis vitae. Commodo nisi blandit augue mi sagittis sed ullamcorper sit.
- 3 bedrooms
- 3 baths
- 2,551 sqft
- 2 carports
Level 2
Sed vitae scelerisque facilisis ornare sed egestas nec vitae. Posuere malesuada phasellus elit posuere vitae vitae commodo. Consequat et venenatis in erat quisque quisque vitae.
- 3 bedrooms
- 3 baths
- 2,551 sqft
Level 3
Sed vitae scelerisque facilisis ornare sed egestas nec vitae. Posuere malesuada phasellus elit posuere vitae vitae commodo. Consequat et venenatis in erat quisque quisque vitae.
- 3 bedrooms
- 3 baths
- 2,551 sqft
Gallery
Experience the home of your dreams
Contact us now to start your design journey with a free consultation.
Let’s bring your vision to life together.